東急不動産オフィスビル情報

お問い合わせ

ウノサワ東急ビルBUILDING

  • 募集中
  • リニューアル
  • 小規模区画あり
  • 駅近

JR「恵比寿」駅徒歩3分の物件です。
重厚感のある車寄せとグレード高いエントランスがビジネスに格式をもたらします。

セットアップ区画詳細はこちら↓

  • 募集中
  • リニューアル
  • 小規模区画あり
  • 駅近

JR「恵比寿」駅徒歩3分の物件です。
重厚感のある車寄せとグレード高いエントランスがビジネスに格式をもたらします。

セットアップ区画詳細はこちら↓

オフィスのポイント

  • 再エネ100%
  • 非常用発電機あり

最寄り駅恵比寿駅徒歩3分

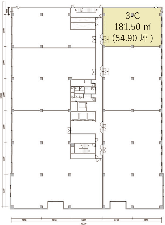
募集区画

フロア 用途 賃貸面積 入居可能時期 目安人数
  • 内装付き
  • 敷金0
3-C 事務所 181.50m2 / 54.90坪 2026年3月5日(予定) 20〜50人 図面

※クリックすると拡大されます。

物件概要

所在地
東京都渋谷区恵比寿1-19-15
アクセス
JR「恵比寿」駅徒歩3分
東京メトロ日比谷線「恵比寿」駅徒歩5分
竣工年月
1984年3月(リニューアル:2008年3月)
延床面積
17,038.18m2 / 5,154.04坪
基準階面積
2,107.34㎡/637.47坪
構造
鉄骨鉄筋コンクリート造
建物規模
地下1階地上7階建
設計
(株)東急設計コンサルタント
施工
東急建設(株)、(株)大林組、戸田建設(株)

貸室概要

天井高
3-F:3,350mm
コンセント容量
3-F:50VA/㎡
OAフロア
70mm
空調方式
個別空調
床荷重
300kg/㎡
セキュリティー
キーボックス方式(機械警備)
その他
-

特徴

免震・制震構造
-
非常用発電機
あり
セキュリティゲート
-
駐車場
平面式39台
その他
-

2026年01月現在

360°VRVIRTUAL REALITY

   

CONTACT

弊社オフィスビルに関するお問い合わせはこちら。
該当するお問い合わせ内容をクリックしてください。

オフィスビル以外のお問い合わせにつきましては、ご返答にお時間を頂戴する場合がございます。
恐れ入りますが、各種お問い合わせ よりお問い合わせください。