東急不動産オフィスビル情報

お問い合わせ

浜松町スクエアBUILDING

  • 募集中
  • リニューアル
  • 駅近

「浜松町・大門」駅徒歩1分、2駅4路線が利用可能で、羽田空港へのアクセスにも優れた物件です。約270坪の整形無柱な貸室空間が自在なレイアウトを実現します。

  • 募集中
  • リニューアル
  • 駅近

「浜松町・大門」駅徒歩1分、2駅4路線が利用可能で、羽田空港へのアクセスにも優れた物件です。約270坪の整形無柱な貸室空間が自在なレイアウトを実現します。

オフィスのポイント

  • 環境認証
  • 制震
  • 再エネ100%
  • 非常用発電機あり

最寄り駅浜松町駅徒歩1分、大門駅徒歩1分

募集区画

フロア 用途 賃貸面積 入居可能時期 目安人数
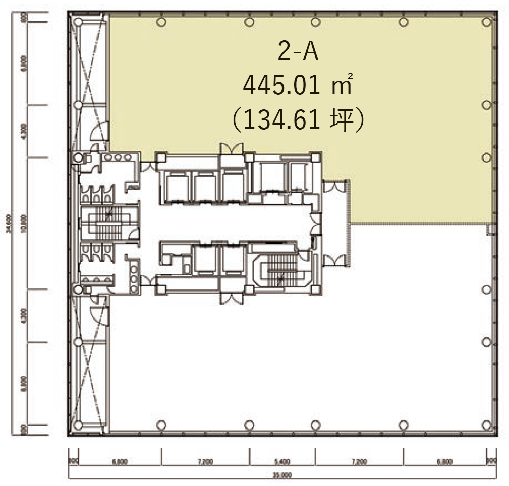
2-A 事務所 445.01m2 / 134.61坪 2026年7月1日(予定) 50〜100人 図面
9階 事務所 905.95m2 / 274.04坪 2026年8月1日(予定) 100〜150人 図面

当施設は、下記の
環境認証を取得しています

DBJ Green Building認証 *

評価ランク 3 stars ★★★

3 stars ★★★

国内トップクラスの卓越した「環境・社会への配慮」がなされたビル

*DBJ Green Building認証とは、「環境や社会へ配慮がなされた不動産」を評価する認証制度です。

※クリックすると拡大されます。

物件概要

所在地
東京都港区浜松町1-30-5
アクセス
JR・東京モノレール「浜松町」駅徒歩1分
都営浅草線・大江戸線「大門」駅徒歩1分
竣工年月
2004年9月(リニューアル:2021年10月)
延床面積
23,946.50m2 / 7,243.81坪
基準階面積
905.95㎡/274.04坪
構造
鉄骨造一部鉄骨鉄筋コンクリート造
建物規模
地下1階地上20階建
設計
(株)東急設計コンサルタント、東急建設(株)
施工
東急建設(株)

貸室概要

天井高
2,700mm
コンセント容量
60VA/㎡
OAフロア
100mm
空調方式
個別空調
床荷重
300kg/㎡(一部500kg/㎡)
セキュリティー
非接触ICカードキー
その他
-

特徴

免震・制震構造
制震構造
非常用発電機
あり
セキュリティゲート
-
駐車場
70台(オフィス・住居共用)
その他
-

2026年04月現在

360°VRVIRTUAL REALITY

CONTACT

弊社オフィスビルに関するお問い合わせはこちら。
該当するお問い合わせ内容をクリックしてください。

オフィスビル以外のお問い合わせにつきましては、ご返答にお時間を頂戴する場合がございます。
恐れ入りますが、各種お問い合わせ よりお問い合わせください。